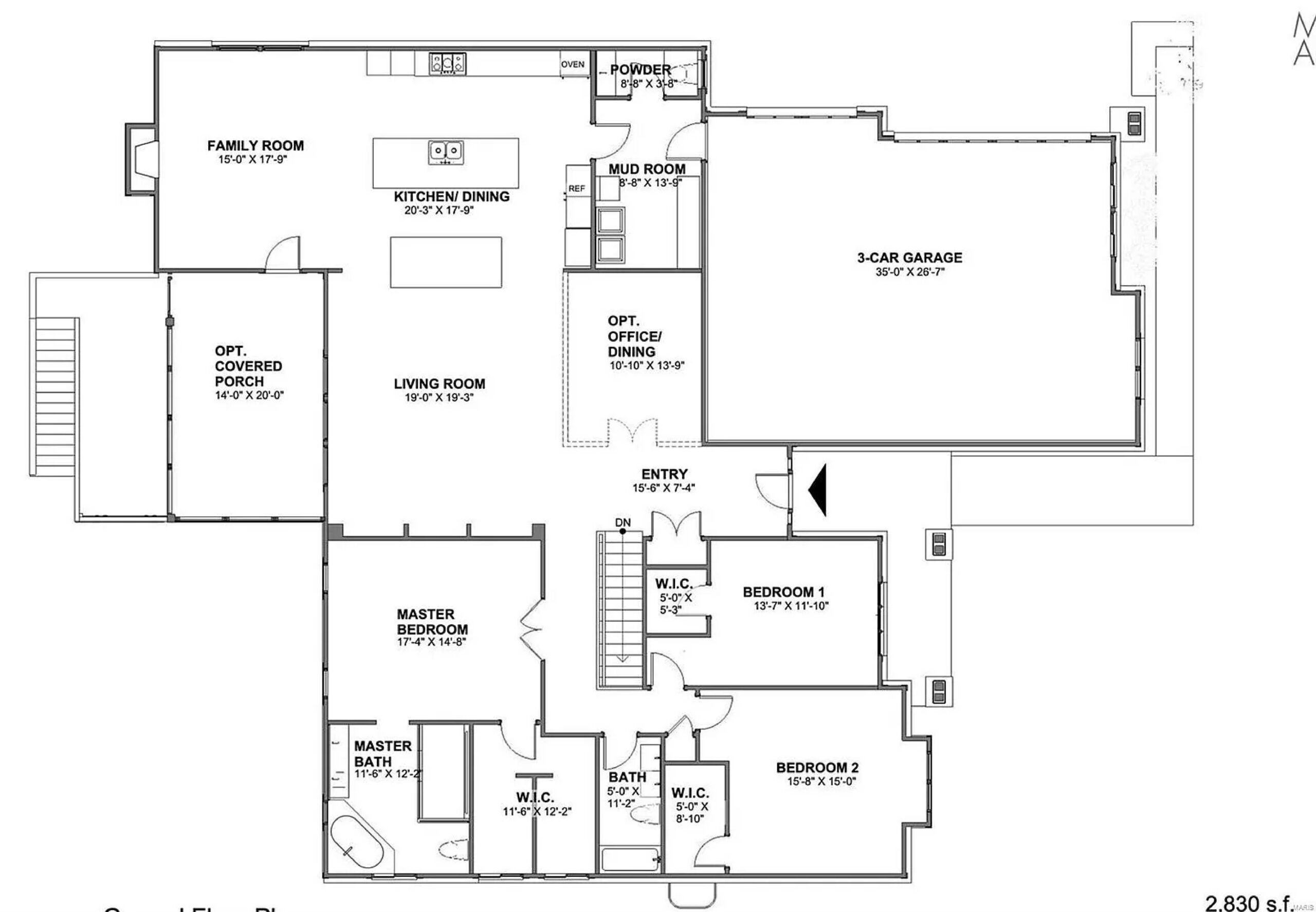
Indulge in one-story luxury living with this 2680 sq ft custom home on a lot of 25,265 sq ft (or 0.58 acres) with 4 bedrooms and 4 baths in the coveted Vistas at Stone Castle subdivision in Sunset Hills, MO. Meticulously designed for comfort and style, this residence boasts a spacious floor plan, gourmet kitchen, and modern finishes. With tranquil surroundings and easy access to amenities, it’s the epitome of convenience and elegance. Seize the opportunity to own a custom home in this exclusive Tapawingo community.


























































